Home » properties » A1 Réservé

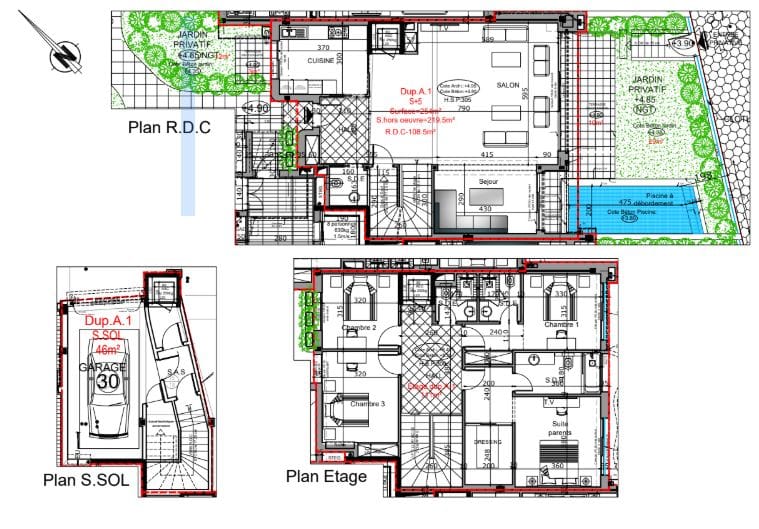
Un ensemble résidentiel de haut standing niché au cœur du quartier prestigieux du Lac 0, alliant luxe moderne et tranquillité. Ce triplex se distingue par des finitions raffinées, une cuisine équipée, des revêtements nobles et une architecture étudiée sur plusieurs niveaux.